Leave a Message

Thank you for your message. I will be in touch with you shortly.

Search Properties

6449 Red Hill Church Road

$1,100,000
6449 Red Hill Church Road, Benson, NC 27504
6449 Red Hill Church Road

6449 Red Hill Church Road

$1,100,000

Situated on 12.9 acres along the Johnston and Harnett County line, this unique property offers a rare combination of space, natural beauty, and opportunity.

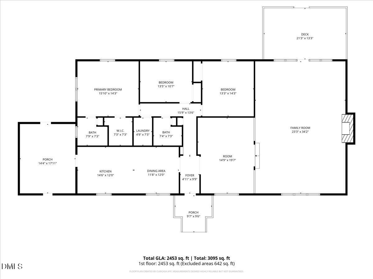
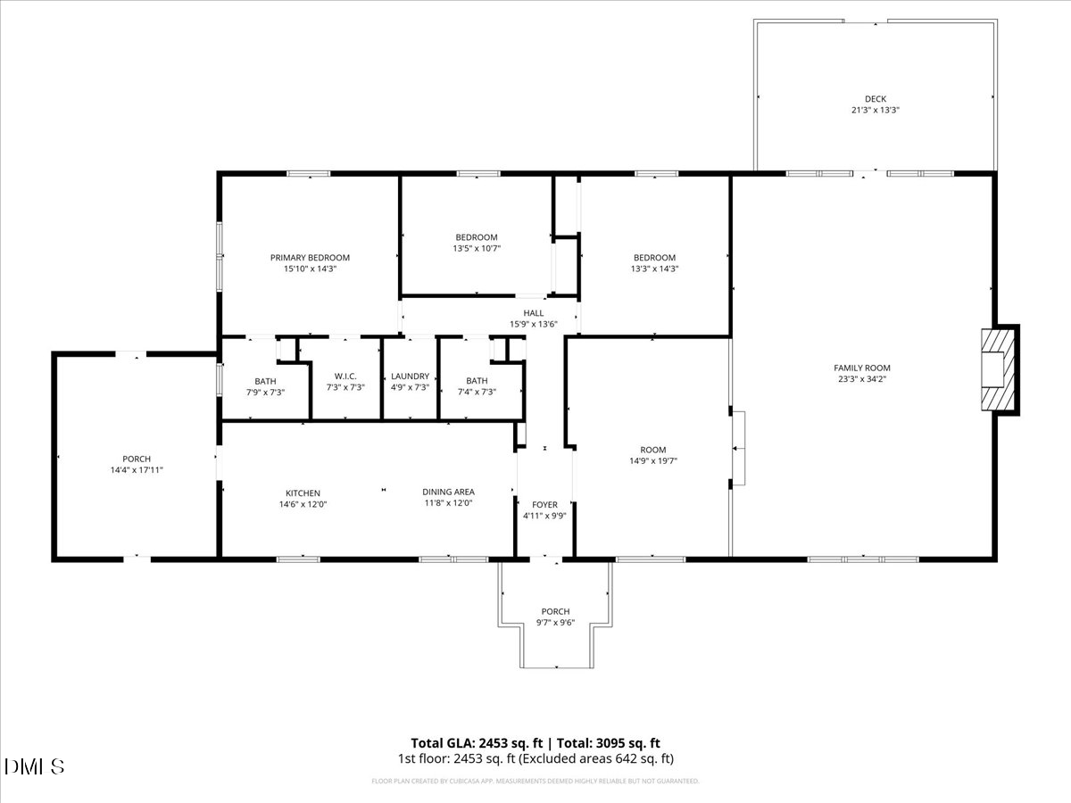
Built in 1946, the home features 3 bedrooms, 2 bathrooms, and approximately 2,453 square feet. A spacious 23x34 living room with vaulted ceilings creates an impressive central gathering space with plenty of room for entertaining or relaxing. The structure of this home provides a solid starting point for renovation.

Step outside and enjoy the peaceful setting from the back deck or the covered patio just off the kitchen, which is an ideal spot to sit, unwind, and take in the surrounding nature.

The 12.9-acre tract offers a diverse landscape with partially cleared land, wooded areas for privacy, and a stream that runs along the county line. The property includes road frontage and has historically supported horses, livestock, and farming, with suitable areas for gardens or agricultural use.

Several outbuildings provide flexibility for storage, equipment, or hobby space, including a detached garage with office space and ample storage, as well as a detached barn building. The property is served by well water and septic.

Whether you're looking for acreage, room for outdoor projects, or a property with potential to update and make your own, this unique offering provides the space and versatility that are increasingly hard to find.
Wendy Huff
Wendy Huff Contact

Features & Amenities

Interior

Total Bedrooms 3
Total Bathrooms 2
Full Bathrooms 2
Flooring Carpet, Vinyl
Appliances Dishwasher, Range, Refrigerator, Washer/Dryer
Other Interior Features Ceiling Fan(s), Vaulted Ceiling(s), Wet Bar

Exterior

Stories 1
Garage Space 1.0
Water Source Well
ROOF Shingle
Lot Features Back Yard, Farm, Garden, Hardwood Trees, Meadow, Partially Cleared, Pasture
Parking Detached, Driveway
Heat type Electric, Heat Pump
Air Conditioning Central Air, Heat Pump
Sewer Septic Tank
Disability Features Accessible Stairway
Other Exterior Features Covered Courtyard, Private Yard, Storage

Area & Lot

Status For Sale
LIVING SPACE 2,453 Sq.Ft.
TOTAL AREA 2,453 Sq.Ft.
LOT SIZE 12.9 Acres
MLS® ID 10152168
Type Residential
Year Built 1946
Neighborhood Harnett County
Architecture Styles Ranch, Traditional
ELEMENTARY SCHOOL Harnett - Erwin
MIDDLE SCHOOL Harnett - Coats - Erwin
HIGH SCHOOL Harnett - Triton

Financial

SALES PRICE $1,100,000
REAL ESTATE TAXES $2,313/yr
Zoning RA-30
image

Schedule a Showing

I would love to show you this beautiful property. Please select your preferred date and time below. I will be in touch shortly to confirm your appointment.

Schedule a Showing

I would love to show you this beautiful property. Please select your preferred date and time below. I will be in touch shortly to confirm your appointment.

Thank you for your interest in 6449 Red Hill Church Road, Benson, NC 27504. We are reviewing your request and will be in touch shortly!

Mortgage Calculator

Estimate your monthly mortgage payment, including the principal and interest, property taxes, and HOA. Adjust the values to generate a more accurate rate.

All estimates are provided for informational purposes only. Actual amounts may vary.
$0,000 Your Payment 20 15 65
$0,000 Your Payment
Harnett County

Harnett County

Read more

Work With Wendy

Huff Properties is dedicated to helping you find your dream home and assisting with any selling needs you may have. Contact Wendy today for a free consultation for buying, selling, renting, or investing in North Carolina.

Let's Connect